Rudy Zix Architekten wurde von Dominik Rudy und Johannes Zix im Jahr 2019 gegründet. Nach dem gemeinsamen Studium an der RWTH Aachen begleiteten sie für verschiedene Architekturbüros diverse Projekte aus den Bereichen Bildung und Wohnen sowie Büro- und Gewerbebau. Anschließende Tätigkeiten in der akademischen Lehre und im Projektmanagement unterstreichen ihren Anspruch einer ganzheitlichen Projektbetrachtung, unabhängig von Umfang und Maßstab der Aufgabe. Ihre Arbeitsweise prägt gleichermaßen eine technische, theoretische sowie prozessorientierte Auseinandersetzung. Dafür steht auch ein projekterfahrenes und vielseitiges Team.
Rudy
Zix
Architekten
Projekte
Neubau mit Kindertagesstätte und Gewerbenutzung
Sanierung und Aufstockung eines Wohnungsbaus
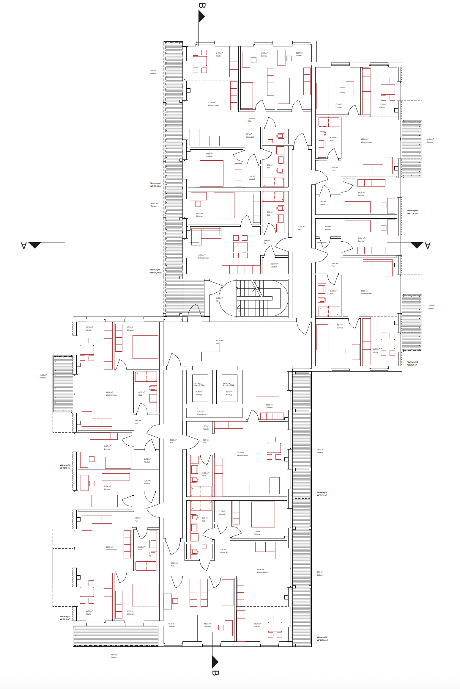
Nachverdichtung einer studentischen Wohnanlage in Aachen-Mitte
Das 8-geschossige Gebäude wurde 1986 als DDR-Systembau in Stahlbeton-Skelettbauweise errichtet. Der eigentlich als Gesellschaftsbau konzipierte Bautyp SKBM 72 wurde bislang gewerblich und institutionell genutzt. Im Rahmen einer energetischen Sanierung mit Schadstoffbeseitigung soll das Gebäude zu einem Mietwohnungsbau mit ergänzenden Gewerbeflächen umgenutzt, aufgewertet und erweitert werden.
Die Gemeinde Nuthetal beabsichtigt die Weiterentwicklung des Gewerbegebietes am Standort Bergholz-Rehbrücke. Es wird eine Nachverdichtung mit einem Mix aus Büro, Gewerbe, Produktion und auch mit Wohnen angestrebt. Das in dem Rahmen zu überplanende Grundstück befindet sich unmittelbar an der Arthur-Scheunert-Allee. Als Auftakt des Entwicklungsgebietes und Schnittstelle zum angrenzenden Wohngebiet soll ein neuer repräsentativer Quartiersbaustein mit einer Mischnutzung aus Wohnen, Einzelhandel und Büros entwickelt werden.
Der Neubau des Wohnturms ist als zusammenhängender 14-geschossiger Baukörper konzipiert. Die Schaffung von neuem Wohnraum wird mit öffentlichen Nutzungen für ein Familienzentrum und einer Kindertagesstätte kombiniert. Zielsetzung ist die angemessene Ausnutzung des Grundstücks bei gleichzeitiger Schaffung von viel qualitativem Wohnraum und Vermittlung mit der umgebenden Bebauung. Der markante Gebäudeversatz optimiert dabei die Belichtungs- und Belüftungssituation der Wohnungen, gleichzeitig werden Verkehrsflächen auf ein Minimum reduziert. Die überwiegende Anzahl an Wohnungen wird 2-seitig belichtet. Durch die Strukturierung der Fassade wird eine optimale Nutzung wie Ausrichtung von Innen hergestellt, die aber auch der Fernwirkung des Gebäudes als neue Ikone für das Quartiers dient.
Die städtebauliche Idee umfasst die Schaffung einer neuen Ortsmitte, geprägt von verschiedenen Höhenebenen, die als pulsierendes Zentrum der Begegnung, des Austauschs und der Gemeinschaft fungiert. Die Neubauten für Biergarten und Gemeindesaal bilden einen städtebaulichen „Dreiklang“ unter Einbezug des denkmalgeschützten Wirtshauses. Die großzügige Freifläche bietet den Bürgerinnen und Bürgern von Ihrlerstein ausreichend Platz für vielfältige Nutzungen, wie auch Marktveranstaltungen oder Biergartenfeste.
Neubau eines zweigeschossigen Einfamilienhauses in Holz-Rahmenbauweise
Das Mehrfamilienhaus aus den 1930er Jahren soll im ersten Obergeschoss durch einen Anbau erweitert werden. Dazu wird in Holzständer-Bauweise der vorhandene straßenseitige Vorbau aufgestockt. Ein großflächiges Fensterband sorgt für eine lichtdurchflutete und vielseitige Nutzung der Wohnraumerweiterung. Die Fassade wird an Brüstung und Attika mit vor-oxidiertem Kupferblech bekleidet und erhält innenseitig eine Holzvertäfelung.
Neubau und Neuordnung der Luisenschule in Bielefeld
Das zum Großteil als Hostel genutzte Gründerzeitgebäude am Rosenthaler Platz soll energetisch saniert und im Erdgeschoss umgebaut werden. Der bislang ungenutzte Innenhof soll aufgewertet, die Lobby und das Café umgestaltet und ein Mini-Gym ergänzt werden. Weitere Maßnahmen sind die Neugestaltung der Fassaden, der Austausch der Fenster und die Ergänzung von Geländern. Darüber hinaus ist die Ertüchtigung von Holzbalkendecken, die Sanierung zentraler Sanitärbereiche sowie die energetische Ertüchtigung und Sanierung des Daches.
An einem Hanggrundstück in Werder an der Havel soll angrenzend an einen denkmalgeschützten Bestandsbau bezahlbarer Wohnraum entstehen. Auf Grundlage eines gegebenen Entwurfes für 4 Punkthäuser und eine gemeinschaftlich genutzte Tiefgarage wurde die umsetzungsreife Ausführungsplanung erarbeitet.
Stadt entlang der Industriebahn Tegel-Friedrichsfelde – Architektur als Kritik an dem, was da ist
„Die Ausstellung zeigt Collagen eingeladener Architektinnen und anderer Planer zu folgendem Szenario: Man stelle sich vor, dass auf der ehemaligen Güterbahnstrecke von Tegel Hafen nach Friedrichsfelde Ost eine S-Bahn-Linie führe und zeige auf, wie sich die Stadt hier entwickeln könnte.“ (Auszug Pressemitteilung BDA Galerie Berlin)
tbd
Das Wohn- und Geschäftshaus am Kurfürstendamm wurde 1892 errichtet und hat seitdem diverse Umbauten erfahren. Der Umgestaltung im Jahre 1928 durch Johann Emil Schaudt für eine Kaufhausnutzung von Salamander folgten ab Mitte der 1980er Jahre wesentliche bauliche Veränderungen im Stil der späten Postmoderne sowie ein 2-geschossige hofseitiger Ergänzungsbau. Die unteren drei Geschosse dienen dem derzeitigen Nutzer einer Bankfiliale als Geschäfts- und Büroräume. In den oberen Geschossen befinden sich Praxen und Wohnungen. In einer Studie wird die bestehende Gebäudesituation hinsichtlich einer möglichen Hofüberbauung, Nachverdichtung und Umstrukturierung untersucht. Dabei werden bauliche Ideen für ein Gesamtkonzept entwickelt, die das Potential des Bestandsgebäudes aufzeigen.
Das denkmalgeschützte Geschäftshaus am Kurfürstendamm 224 wurde 1950 als „Modehaus Horn“ nach den Plänen von Rolf Bermbach errichtet. In der unmittelbaren Nachkriegsentwicklung steht die Architektur für die Wiederaufnahme der Neuen Sachlichkeit der 1920er Jahre. Die Planung sieht notwendige technische Modernisierungsmaßnahmen für einen CO2-neutralen Betrieb in Verbindung mit einer behutsamen Dachaufstockung zur Büronutzung einschließlich Dachgarten vor.
Auf dem historischen Industrieareal der Knorr-Bremse AG in Berlin-Marzahn soll ein kompaktes Bauteil für Parken, Gewerbe und Büros entstehen. Die Planung kombiniert mehrgeschossige »Handwerkerhöfe« für Handwerks- und Produktionsbetriebe mit einer Quartiersgarage. Diese wird zukünftig das Wohnareal zentral versorgen, um ein weitestgehend autofreies Quartier zu sichern. Einfache Konstruktionsprinzipien, Low-Tech Konzepte und die sorgfältige Auswahl verfügbarer Materialien formulieren eine identitäts-prägende Architektur und sorgen gleichermaßen für bezahlbare und attraktive Mietflächen. Die Gebäudehülle aus monolithischem Ziegel-Mauerwerk, ohne zusätzlicher Wärmedämmung und vorgehängter Fassade, ist dabei ein wesentlicher Bestandteil. Der rot geschlemmte sichtbare Stein verweist auf die Klinkerarchitektur der Industrie des frühen 20. Jahrhunderts, wie auch den gegenüberliegenden Knorr Bremse Bau. Ergänzt durch die rötliche Einfärbung der Fenster entsteht eine neuinterpretierte Gewerbetypologie. Das behutsame Aufgreifen von gestalterischen Elementen der Bestandsbauten und das gleichzeitige Verwenden moderner Materialien vermittelt bei dem Vorhaben Neues in Bestehendes einzufügen ohne dabei in Konkurrenz zu treten.
Am historischen Standort des ehemaligen Gloria-Palastes am Kurfürstendamm entsteht ein neues Geschäftshaus nach einem Entwurf von Ortner und Ortner Baukunst. Neben Einzelhandelsflächen sind repräsentative Büroflächen vorgesehen. Die Aufgabe besteht in der Ausführungsplanung für den Ausbau im 2. bis 5. Obergeschoss.
In direkter Nachbarschaft zum S-Bahnhof Hoppegarten entsteht ein neues Wohn- und Beherbergungsgebäude mit 12 Apartments als Anbau eines freistehenden Bestandsgebäudes. Die Aufgabe umfasst die Ausführungsplanung des zweigeschossigen Neubaus mit ausgebautem Dachgeschoss und Unterkellerung.
Dachausbau in Berlin-Neukölln
Die Everword-Grundschule in Freckenhorst der Stadt Warendorf soll mit einem Ersatzbau für die offene Ganztagsbetreuung erweitert werden. Auch der Kopfbau mit Räumlichkeiten des Verwaltungsbereichs soll neu organisiert werden und steht optional zur Disposition. Der Entwurf vereint beide Nutzungen in einem Baukörper und schließt 2-geschossig an den im Bestand befindlichen Treppenraum an. Gemeinsam mit der geplanten Sporthalle wird eine platzartige Adresse ausgebildet, welche den neuen Haupteingang repräsentativ akzentuiert. Die OGS schließt ebenerdig an den Eingangsbereich an und grenzt das Schulgelände gegenüber der Straße ab. Es entsteht ein neuer kleiner Schulhof, der insbesondere im Zusammenhang der OGS genutzt werden kann. Dem als Holzskelettbau konzipierten Neubau wird ohne größeren Aufwand eine modulare Erweiterung für eine spätere Vergrößerung der Schule ermöglicht. Darüber hinaus sind flexible Grundrisskonfigurationen gegeben. Durch das gewählte Raster können Trennwände gut umgesetzt, ergänzt oder herausgenommen werden. Mobile Trennwände unterstreichen die Idee von Flexibilität, Mobilität und Individualität.
Auf dem Gelände des Schulzentrums Achter de Weiden wird ein quartiersoffener Erweiterungsschulbau mit individuellen und flexiblen Lernräumen für Kinder und Jugendliche im Sinne nachhaltiger und energieeffizienter Ressourcennutzung geschaffen. Der freistehende Neubau greift die städtebauliche Figur der Bestandsschule auf und stärkt die räumlichen Qualitäten im erweiterten Kontext. Es entsteht eine dem Ort angemessene Maßstäblichkeit, die durch die Setzung zum Bestand vermittelnd wirkt. Das Gegenüber zur Bestandsschule definiert eine platzartige Freifläche als gemeinsame Adresse und neue Mitte des Campus. Das Schulgebäude ist als Skelettbau in Beton-Holz-Hybridbauweise konzipiert und systematisiert. Ein filigranes Fassadengerüst kombiniert durch seine konstruktive Tiefe einen umlaufenden Laubengang mit beweglichen Verschattungselementen und ermöglicht den Klassenbereichen einen hohen Öffnungsanteil zur optimalen Tageslichtnutzung.
Im Südwesten des Berliner Bezirks Treptow-Köpenick entsteht in unmittelbarer Nähe zur Bruno Taut Siedlung »Gartenstadt Falkenberg« ein neues Wohnquartier. Der zentral angelegte Quartierspark bietet als großzügig grüner Freiraum eine vielseitige nachbarschaftliche Naherholungsfläche und vermittelt die Idee der Gartenstadt. Zwei Bestandsgebäude werden durch 7 Neubauten ergänzt. Auf jeweils 5 Geschossen wird ein Mix aus geförderten und frei-finanzierten Wohnungen mit andienender Tiefgarage sowie Apartments für Studierende realisiert. Auftakt bildet ein weiterer Baustein mit einer Kita, Büro- und Praxisflächen. Auf der Planungsgrundlage der Entwurfsarchitekten erfolgt in 9-monatiger Planungszeit die Erarbeitung und Abstimmung der baureifen Ausführungs- und Detailplanung. Voraussichtlicher Baubeginn ist Sommer 2021.
tbd
Die Sanierungsmaßnahmen an der Ostfassade der Katholischen Grundschule in Rösrath umfassen Ausbesserungen der Putzflächen, die Erneuerung der Aluminium-Fensteranlage sowie die Ertüchtigung durch außenliegenden beweglichen Sonnenschutz.
»Die Verfasser beantworten die Aufgabenstellung mit einer urbanen, großstädtisch wirkenden Gebäudefigur. Mit der Gebäudeanordnung entsteht eine günstige Öffnung zum nördlichen Freibereich, der großzügig bemessen werden kann. Die Idee einer neuen Fußwegverbindung durch das Sport- und Freigelände ist ein überraschender und wirkungsvoller Beitrag zur Erschließung der neuen Funktionen. Durch die Anbindung an den Fußgängerüberweg der Bundesstraße werden die angrenzenden Wohngebiete besser mit dem Freizeitbereich verknüpft als dies bisher über die Jahnstraße möglich ist. An dem zentralen Weg können sowohl die neuen Freizeitnutzungen wie Pumptrack, Grillplatz etc. „aufgefädelt“ und sinnvoll verbunden, als auch der schnelle Zugang zum Parkplatz gelöst werden. Der Baumbestand kann erhalten und erweitert werden; der Bolzplatz ist mit einem Aktivitätenband begleitet und bleibt in Nord-Süd-Richtung gut eingebunden.« (Auszug aus dem Protokoll des Preisgerichtes)
Die neu zu schaffenden Nutzungsbereiche aus Schule, Schulsporthalle und Vereinssporthalle sind in drei einzelnen städtebaulichen Bausteinen vorgesehen, die sich als eigenständige Solitärbauten in den bandartigen Park integrieren und gleichzeitig mit dem öffentlich genutzten Bestandsbau eine gemeinsame neue Mitte erzeugen. Das Schulgebäude gibt in seiner Struktur die Identität der Doppelschule wieder: Der Sockel vereint gemeinsame Funktionsbereiche, während die Klassengeschosse sich der jeweiligen Schulform zugeordnet in Jahrgangsclustern differenzieren. Die Fassade hebt die Gebäudestruktur des Skelettbaus mit glatt-geschalten Lisenen aus Sichtbeton hervor. Die dazwischen gespannten Brüstungselemente aus Sichtbeton-Fertigteilen erhalten eine Oberflächenstruktur mit Prägungen aus abstrakten botanischen Motiven und stellen einen subtilen Ortsbezug zu den umliegenden Moorgebieten dar.
Die repräsentativen Büroflächen im Erdgeschoss eines bestehenden Geschäftshauses in Berlin-Mitte werden für eine Neunutzung in Teilen umstrukturiert und modernisiert.
»Die städtebauliche Setzung folgt mit einem historischen Zitat einer Besonderheit des Ortes: der Struktur der ehemaligen Munitionslager. Dieses Motiv wird vom Verfasser besonders phantasievoll in eine zeitgemäße und stringente Struktur fortentwickelt. Sie fügt sich in der Körnigkeit gut ein, entwickelt eine spezifische Besonderheit und kann auch in der Umsetzung als robust bewertet werden. Langgestreckte Hofensemble bilden räumlich reizvolle autofreie Binnenräume, die über torartige Zugänge betreten werden, Autos sind konsequent in kopfseitigen, schuppenartigen Nebengebäuden untergebracht. Diese werden über eine sparsame u-förmige Straße erschlossen. Ein großer quadratischer Platz mit Baumbestand bildet eine neue Mitte. Insgesamt ist die Arbeit aufgrund ihrer Eigenständigkeit, dem sparsamen und zukunftsfähigen Erschließungssystems und der großzügig erlebbaren gut nutzbaren zusammen hängenden privaten Gärten und Grünräumen ein wichtiger Beitrag zur gestellten Aufgabe.« (Auszug aus dem Protokoll des Preisgerichtes)
Das Bauvorhaben für ein neues Bürogebäude bildet einen weiteren Baustein am Wissenschafts- und Technologiestandort in Berlin-Adlershof. Der freistehende Neubau ergänzt ein bestehendes Büro- und Produktionsgebäude zu einem städtebaulichen Ensemble und lässt einen gemeinsam nutzbaren hofartigen Außenraum entstehen. Die vom Straßenraum seitlich orientierte Eingangssituation ermöglicht einen exklusiven Vorbereich und unterstreicht eine eigenständige Adressbildung sowie Nutzungsmöglichkeit. Die Gebäudestruktur folgt der Idee eines fertig nutzbaren „veredelten Rohbaus“ und bietet ein hohes Maß an Ausbauflexibilität. Dabei bilden eine mit Nebenräumen definierte Kernzone sowie eine einheitliche Fassade das identitätsstiftende Gerüst des Gebäudes. Profilierte Keramikelemente bekleiden die Sturzbänder und erzeugen ein robustes und wertiges Fassadenbild: Homogen in seiner Struktur, zugleich lebendig durch wechselhafte Lichtreflexion.
Büro
Dominik Rudy hat 2009 an der RWTH Aachen am Lehrstuhl für Bauplanung und Baurealisierung sein Diplom abgeschlossen. In Berlin konnte er als Projektarchitekt in renommierten Architekturbüros Erfahrung in der Planung von Bildungs-, Wohn- und Bürobauten in allen Leistungsphasen sammeln. Seine berufliche Expertise erweiterte er als Architekt und Partner bei einem Generalunternehmer und als Projektmanager in der Projektentwicklung bevor er 2019 gemeinsam mit Johannes Zix das Büro gründete.
Johannes Zix wurde 1980 in Eupen (Belgien) geboren. Nach dem Abitur in Aachen folgte eine Ausbildung zum Bauzeichner und das Architekturstudium an der RWTH Aachen. Sein Diplom erhielt er 2009 am Lehrstuhl für Gebäudelehre bei Prof. Anne-Julchen Bernhardt und Prof. Meinrad Morger. Anschließend begleitete er für Architekturbüros in Köln und Berlin mehrere Wohn- und Bildungsbau-Projekte sowie Wettbewerbe. 2013 erfolgte die Eintragung in die Liste der AK Berlin als freischaffender Architekt. Johannes Zix erhielt 2011-2012 einen Lehrauftrag am Lehrstuhl für Baukonstruktion der TU Dortmund und von 2013 bis 2018 war er wissenschaftlicher Mitarbeiter am Lehrstuhl für Baukonstruktion und Entwerfen an der TU Berlin. Neben der klassischen Entwurfslehre engagierte er sich für studentische Selbstbauprojekte und wirkte an Publikationen mit. 2019 gründete er mit Dominik Rudy das gemeinsame Büro.
Susana Villares Lopez, geboren in Santiago de Compostela, studierte Architektur an der ETSA Coruña (Spanien) und Universidade Lusófona de Lisboa (Portugal). Nach ihrem Diplomabschluss in 2007 arbeitete sie mehrere Jahre in Coruña, Lissabon und Berlin, u. a. für Stankovic&Jortzick und léonwohlhage. Seit 2019 unterstützt sie als erfahrene Architektin diverser Großprojekte das Büro in der Entwurfs- und Ausführungsplanung.
Paul Künzel wurde 1986 in Berlin geboren. Nach seinem Abschluss MA Sc. Architektur an der TU Berlin war er, neben selbständiger Tätigkeit, Mitarbeiter bei Umbau-, Infrastruktur- und Wohnungsbauprojekten in diversen Berliner Architekturbüros, wie Bruno Fioretti Marquez Architekten, Dörr Ludolf Wimmer und Kim Nalleweg Architekten. Seit 2018 ist er Mitglied der Berliner Architektenkammer und seit 2020 bei Rudy Zix Architekten.
Andrea Alvarez Menendez studierte Architektur an der ETSA Coruña (Spanien) sowie der Université de Clermont Ferrand (Frankreich) und schloss ihr Studium 2009 ab. Anschließend hat sie für diverse Studios in Spanien und Deutschland, u.a. Anderhalten, BHBVT, Brandlhuber+, vielseitige Projekte aus den Bereichen Kultur, Bildung, Wohnen, Gewerbe und Verkehr begleitet. Andrea ergänzt das Team seit 2020.
Anna Rusche wurde 1980 in Soest geboren. Nach dem Abitur folgte eine Ausbildung zur Bauzeichnerin in Soest. Das Architekturstudium an der RWTH Aachen schloss sie 2009 mit dem Diplom am Lehrstuhl für Gebäudelehre bei Prof. Anne-Julchen Bernhardt und Prof. Meinrad Morger ab. Anschließend war sie in mehreren Architekturbüros in Berlin als Mitarbeiterin tätig und wirkte u.a. am Bikini Berlin (Hild und K Berlin) und einem Wohnquartier in Lichtenberg (de+ architekten) mit. Zuletzt erweiterte sie ihre Expertise als Projektmanagerin im Immobilienmanagement Ausland im Auswärtigen Amt in Berlin. Anna ergänzt das Team seit 2021.
Alexander Dürr ergänzt das Team seit 2023. Details folgen…
Karina Fenn, 1997 in Mainz geboren, studierte Architektur an der RWTH Aachen und schloss ihr Studium 2024 ab. Praxiserfahrungen sammelte sie unter anderem bei Springer Architekten und Kim Nalleweg Architekten sowie als studentische Mitarbeiterin am Lehrstuhl für Architekturgeschichte. Als Werkstudentin war sie bei smaa Studio für Architektur und Rudy Zix Architekten tätig. Karina ergänzt unser Team seit 2023.
Olesia Sakhareva ergänzt das Team seit 2023. Details folgen…
Paula Günster, 1997 in Stuttgart geboren, studierte Architektur an der RWTH Aachen sowie an der ETSAM in Madrid und der Universität Neapel Federico II. 2023 schloss sie mit dem Masterstudium ab. Sie arbeitete am Lehrstuhl für Kunstgeschichte der RWTH und sammelte praktische Erfahrungen bei blauraum Architekten (Hamburg). Nach dem Abschluss sammelte sie unter anderem Erfahrung im Bereich Bühnenbild an der Deutschen Oper. Paula ergänzt unser Team seit 2024.
Nicholas Roberts-Robbins ergänzt das Team seit 2024. Details folgen…
Tassja Kissing ergänzt das Team seit 2025. Details folgen…
Özgür Irban ergänzt das Team seit 2026. Details folgen…
Lukas Schlüter ergänzt das Team seit 2026. Details folgen…
Tomas Martinez ergänzt das Team seit 2026. Details folgen…
Bastian Landgraf, Olga Herrenbrück, Jakob Krauss, Paul Girod, Livia Machler, Elisabeth Irmen, Anja Müller-Syring, Andreas Stanzel, Klara Groß
Zur Verstärkung unseres Teams sind wir grundsätzlich immer an motivierten Persönlichkeiten interessiert und freuen uns über Bewerbungen an: mitarbeit@rudyzix.de
Aktuell suchen wir für die Bearbeitung von Studien und Wettbewerben bzw. für die Unterstützung in spannenden Projekten motivierte studentische Mitarbeiter (m/w/d) oder Absolventen (m/w/d) der Fachrichtung Architektur. Gewünscht wird konzeptionelles Denken, Entwurfsstärke und eine Affinität zu Grafik und Entwurfsvermittlung in 2D und 3D. Ein abgeschlossenes Bachelor-Studium sowie fortgeschrittene Kenntnisse im Umgang mit ArchiCad und AdobeCS werden vorausgesetzt.
Info
Rudy Zix Architekten
PartGmbB
Büro 5
Prinzessinnenstr. 1
10969 Berlin
Rudy Zix Architekten PartGmbB
Prinzessinnenstraße 1
10969 Berlin
Vertreten durch:
Dominik Rudy
Johannes Zix
Umsatzsteuer-Identifikationsnummer nach §27a Umsatzsteuergesetz:
DE322940262
Berufsbezeichnung: Freischaffender Architekt
Berufsbezeichnung verliehen in: Deutschland
Zuständige Kammer:
Architektenkammer Berlin
Alte Jakobstraße 149
10969 Berlin
Tel: 030/293307-0
Fax: 030/293307-16
Email: kammer@ak-berlin.de
Link: http://www.ak-berlin.de
Berufsrechtliche Regelungen:
Berliner Architekten- und Baukammergesetz (ABKG)
Berufsordnung der Architektenkammer Berlin
Die berufsrechtlichen Regelungen können Sie hier einsehen.
Berufshaftpflichtversicherung:
VHV Allgemeine Versicherung AG
VHV-Platz 1 / 30177 Hannover
Briefanschrift: 30138 Hannover
Haftungsausschluss für Inhalte:
Die Inhalte unserer Seiten wurden mit größter Sorgfalt erstellt. Für die Richtigkeit, Vollständigkeit und Aktualität der Inhalte können wir jedoch keine Gewähr übernehmen. Als Diensteanbieter sind wir gemäß § 7 Abs.1 TMG für eigene Inhalte auf diesen Seiten nach den allgemeinen Gesetzen verantwortlich. Nach §§ 8 bis 10 TMG sind wir als Diensteanbieter jedoch nicht verpflichtet, übermittelte oder gespeicherte fremde Informationen zu überwachen oder nach Umständen zu forschen, die auf eine rechtswidrige Tätigkeit hinweisen. Verpflichtungen zur Entfernung oder Sperrung der Nutzung von Informationen nach den allgemeinen Gesetzen bleiben hiervon unberührt. Eine diesbezügliche Haftung ist jedoch erst ab dem Zeitpunkt der Kenntnis einer konkreten Rechtsverletzung möglich. Bei Bekanntwerden von entsprechenden Rechtsverletzungen werden wir diese Inhalte umgehend entfernen.
Mit dieser Datenschutzerklärung möchten wir Sie über Art, Umfang und Zweck der Verarbeitung von personenbezogenen Daten (im Folgenden auch nur als „Daten“ bezeichnet) aufklären. Personenbezogene Daten sind alle Daten, die einen persönlichen Bezug zu Ihnen aufweisen, z. B. Name, Adresse, E-Mail-Adresse oder Ihr Nutzerverhalten. Die Datenschutzerklärung gilt für alle von uns vorgenommene Daten-Verarbeitungsvorgänge sowohl im Rahmen unserer Kerntätigkeit als auch für die von uns vorgehaltenen Online-Medien.
Wer bei uns für die Datenverarbeitung verantwortlich ist
Verantwortlich für die Datenverarbeitung ist:
Rudy Zix Architekten PartGmbB
Dominik Rudy & Johannes Zix
Herderstraße 14
DE-10625 Berlin
Verarbeitung Ihrer Daten im Rahmen der Kerntätigkeit unseres Unternehmens
Sofern Sie unser Kunde oder Geschäftspartner sind oder sich für unsere Leistungen interessieren, richtet sich Art, Umfang und Zweck der Verarbeitung Ihrer Daten nach dem zwischen uns bestehenden vertraglichen bzw. vorvertraglichen Beziehungen. In diesem Sinne gehören zu den von uns verarbeiteten Daten all diejenigen Daten, die zum Zwecke der Inanspruchnahme der vertraglichen bzw. vorvertraglichen Leistungen durch Sie bereitgestellt werden bzw. wurden und die zur Abwicklung Ihrer Anfrage oder des zwischen uns geschlossenen Vertrages benötigt werden. Sofern sich aus den weiteren Hinweisen dieser Datenschutzerklärung nichts anderes ergibt, beschränkt sich die Verarbeitung Ihrer Daten sowie deren Weitergabe an Dritte auf diejenigen Daten, die zur Beantwortung Ihrer Anfragen und/oder zur Erfüllung des zwischen Ihnen und uns geschlossenen Vertrages, zur Wahrung unserer Rechte sowie zur Erfüllung gesetzlicher Pflichten erforderlich und zweckmäßig sind. Welche Daten hierfür erforderlich sind, teilen wir Ihnen vor oder im Rahmen der Datenerhebung mit. Soweit wir zur Erbringung unserer Leistungen Drittanbieter einsetzen, gelten die Datenschutzhinweise der jeweiligen Drittanbieter.
Betroffene Daten:
- Bestandsdaten (bspw. Namen, Adressen)
- Zahlungsdaten (bspw. Bankverbindungsdaten, Rechnungen)
- Kontakdaten (bspw. E-Mail-Adresse, Telefonnummer, Postanschrift)
- Vertragsdaten (bspw. Vertragsgegenstand, Vertragsdauer)
Betroffene Personen: Interessenten, Geschäfts- und Vertragspartner
Verarbeitungszweck: Abwicklung vertraglicher Leistungen, Kommunikation sowie Beantwortung von Kontaktanfragen, Büro und Organisationsverfahren
Rechtsgrundlage: Vertragserfüllung und vorvertragliche Anfragen, Art. 6 Abs. 1 lit. b DSGVO, rechtliche Verpflichtung, Art. 6 Abs. 1 lit. c DSGVO, berechtigtes Interesse, Art. 6 Abs. 1 lit. f DSGVO
Ihre Rechte nach der DSGVO
Nach der DSGVO stehen Ihnen die nachfolgend aufgeführten Rechte zu, die Sie jederzeit bei dem in Ziffer 1. dieser Datenschutzerklärung genannten Verantwortlichen geltend machen können:
- Recht auf Auskunft: Sie haben das Recht, von uns Auskunft darüber zu verlangen, ob und welche Daten wir von Ihnen verarbeiten.
- Recht auf Berichtigung: Sie haben das Recht, die Berichtigung unrichtiger oder Vervollständigung unvollständiger Daten zu verlangen.
- Recht auf Löschung: Sie haben das Recht, die Löschung Ihrer Daten zu verlangen.
- Recht auf Einschränkung: Sie haben in bestimmten Fällen das Recht zu verlangen, dass wir Ihre Daten nur noch eingeschränkt bearbeiten.
- Recht auf Datenübertragbarkeit: Sie haben das Recht zu verlangen, dass wir Ihnen oder einem anderen Verantwortlichen Ihre Daten in einem strukturierten, gängigen und maschinenlesebaren Format übermitteln.
- Beschwerderecht: Sie haben das Recht, sich bei einer Aufsichtsbehörde zu beschweren. Zuständig ist die Aufsichtsbehörde Ihres üblichen Aufenthaltsortes, Ihres Arbeitsplatzes oder unseres Firmensitzes.
Widerrufsrecht
Sie haben das Recht, die von Ihnen erteilte Einwilligung zur Datenverarbeitung jederzeit zu widerrufen.
Widerspruchsrecht
Sie haben das Recht, jederzeit gegen die Verarbeitung Ihrer Daten, die wir auf unser berechtigtes Interesse nach Art. 6 Abs. 1 lit. f DSGVO stützen, Widerspruch einzulegen. Sofern Sie von Ihrem Widerspruchsrecht Gebrauch machen, bitten wir Sie um die Darlegung der Gründe. Wir werden Ihre personenbezogenen Daten dann nicht mehr verarbeiten, es sei denn, wir können Ihnen gegenüber nachweisen, dass zwingende schutzwürdige Gründe an der Datenverarbeitung Ihre Interessen und Rechte überwiegen.
Unabhängig vom vorstehend Gesagten, haben Sie das jederzeitige Recht, der Verarbeitung Ihrer personenbezogenen Daten für Zwecke der Werbung und Datenanalyse zu widersprechen.
Ihren Widerspruch richten Sie bitte an die oben angegebene Kontaktadresse des Verantwortlichen.
Wann löschen wir Ihre Daten?
Wir löschen Ihre Daten dann, wenn wir diese nicht mehr brauchen oder Sie uns dies vorgeben. Dass bedeutet, dass – sofern sich aus den einzelnen Datenschutzhinweisen dieser Datenschutzerklärung nichts anderes ergibt – wir Ihre Daten löschen,
- wenn der Zweck der Datenverarbeitung weggefallen ist und damit die jeweilige in den einzelnen Datenschutzhinweisen genannte Rechtsgrundlage nicht mehr besteht, also bspw.
nach Beendigung der zwischen uns bestehenden vertraglichen oder mitgliedschaftlichen Beziehungen (Art. 6 Abs. 1 lit. a DSGVO) oder
nach Wegfall unseres berechtigten Interesses an der weiteren Verarbeitung oder Speicherung Ihrer Daten (Art. 6 Abs. 1 lit. f DSGVO), - wenn Sie von Ihrem Widerrufsrecht Gebrauch machen und keine anderweitige gesetzliche Rechtsgrundlage für die Verarbeitung im Sinne von Art. 6 Abs. 1 lit. b-f DSGVO eingreift,
- wenn Sie vom Ihrem Widerspruchsrecht Gebrauch machen und der Löschung keine zwingenden schutzwürdigen Gründe entgegenstehen.
Sofern wir (bestimmte Teile) Ihre(r) Daten jedoch noch für andere Zwecke vorhalten müssen, weil dies etwa steuerliche Aufbewahrungsfristen (in der Regel 6 Jahre für Geschäftskorrespondenz bzw. 10 Jahre für Buchungsbelege) oder die Geltendmachung, Ausübung oder Verteidigung von Rechtsansprüchen aus vertraglichen Beziehungen (bis zu vier Jahren) erforderlich machen oder die Daten zum Schutz der Rechte einer anderen natürlichen oder juristischen Person gebraucht werden, löschen wir (den Teil) Ihre(r) Daten erst nach Ablauf dieser Fristen. Bis zum Ablauf dieser Fristen beschränken wir die Verarbeitung dieser Daten jedoch auf diese Zwecke (Erfüllung der Aufbewahrungspflichten).
Webhosting
Wir bedienen uns zum Vorhalten unserer Internetseiten eines Anbieters, auf dessen Server unsere Internetseiten gespeichert und für den Abruf im Internet verfügbar gemacht werden (Hosting). Hierbei können von dem Anbieter all diejenigen über den von Ihnen genutzten Browser übertragenen Daten verarbeitet werden, die bei der Nutzung unserer Internetseiten anfallen. Hierzu gehören insbesondere Ihre IP-Adresse, die der Anbieter benötigt, um unser Online-Angebot an den von Ihnen genutzten Browser ausliefern zu können sowie sämtliche von Ihnen über unsere Internetseite getätigten Eingaben. Daneben kann der von uns genutzte Anbieter
- das Datum und die Uhrzeit des Zugriffs auf unsere Internetseite
- Zeitzonendifferenz zur Greenwich Mean Time (GMT)
- Zugriffsstatus (HTTP-Status)
- die übertragene Datenmenge
- der Internet-Service-Provider des zugreifenden Systems
- der von Ihnen verwendete Browsertyp und dessen Version
- das von Ihnen verwendete Betriebssystem
- die Internetseite, von welcher Sie gegebenenfalls auf unsere Internetseite gelangt sind
- die Seiten bzw. Unterseiten, welche Sie auf unserer Internetseite besuchen
erheben. Die vorgenannten Daten werden als Logfiles auf den Servern unseres Anbieters gespeichert. Dies ist erforderlich, um die Stabilität und Sicherheit des Betriebs unserer Internetseite zu gewährleisten.
E-Mail-Versand:
Neben dem Hosting unserer Webseite haben wir unseren Anbieter außerdem damit beauftragt, unsere E-Mails zu versenden, zu empfangen und zu speichern. Hierzu verarbeitet unser Anbieter die E-Mail-Adressen der Empfänger und Absender sowie weitere bei der E-Mail-Kommunikation anfallende Daten (Metakommunikationsdaten wie Zeit, IP-Adresse etc.) sowie den Inhalt der jeweiligen E-Mails. Wir möchten Sie darauf aufmerksam machen, dass E-Mails grundsätzlich unverschlüsselt versendet werden. Wir übernehmen daher für den Übertragungsweg der E-Mails zwischen dem Absender und dem Empfang auf unserem Server keine Verantwortung.
Betroffene Daten:
- Inhaltsdaten (bspw. Posts, Fotos, Videos)
- Nutzungsdaten (bspw. Zugriffszeiten, angeklickte Webseiten)
- Kommunikationsdaten (bspw. Informationen über das genutzte Gerät, IP-Adresse)
- Betroffene Personen: Nutzer unserer Internetpräsenz
Verarbeitungszweck:
Ausspielen unserer Internetseiten, Gewährleistung des Betriebs unserer Internetseiten
Rechtsgrundlage: Berechtigtes Interesse, Art. 6 Abs. 1 lit. f DSGVO
Von uns beauftragte(r) Webhoster:Alfahosting
Dienstanbieter: Alfahosting GmbH, Ankerstr. 3b, 06108 Halle (Saale)
Internetseite: https://alfahosting.de/
Datenschutzerklärung: https://alfahosting.de/datenschutz/
Kontaktaufnahme
Soweit Sie uns über E-Mail, Soziale Medien, Telefon, Fax, Post, unser Kontaktformular oder sonstwie ansprechen und uns hierbei personenbezogene Daten wie Ihren Namen, Ihre Telefonnummer oder Ihre E-Mail-Adresse zur Verfügung stellen oder weitere Angaben zur Ihrer Person oder Ihrem Anliegen machen, verarbeiten wir diese Daten zur Beantwortung Ihrer Anfrage im Rahmen des zwischen uns bestehenden vorvertraglichen oder vertraglichen Beziehungen.
Betroffene Daten:
- Bestandsdaten (bspw. Namen, Adressen)
- Kontakdaten (bspw. E-Mail-Adresse, Telefonnummer, Postanschrift)
- Inhaltsdaten (Texte, Fotos, Videos)
- Vertragsdaten (bspw. Vertragsgegenstand, Vertragsdauer)
Betroffene Personen: Interessenten, Kunden, Geschäfts- und Vertragspartner
Verarbeitungszweck: Kommunikation sowie Beantwortung von Kontaktanfragen, Büro und Organisationsverfahren
Rechtsgrundlage: Vertragserfüllung und vorvertragliche Anfragen, Art. 6 Abs. 1 lit. b DSGVO, berechtigtes Interesse, Art. 6 Abs. 1 lit. f DSGVO
Sicherheitsmaßnahmen
Wir treffen im Übrigen technische und organisatorische Sicherheitsmaßnahmen nach dem Stand der Technik, um die Vorschriften der Datenschutzgesetze einzuhalten und Ihre Daten gegen zufällige oder vorsätzliche Manipulationen, teilweisen oder vollständigen Verlust, Zerstörung oder gegen den unbefugten Zugriff Dritter zu schützen.